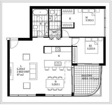
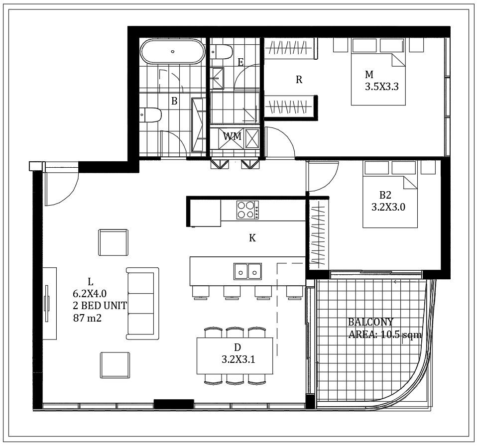
2-Bedroom Unit

Unit Type: 2 bedroom 2 bathroom 1 Car  Size: 87 sqm + 10 sqm Balcony

Your sophisticaed luxurious lifestyle awaits you!
Unit Floorplan
Floorplan Position