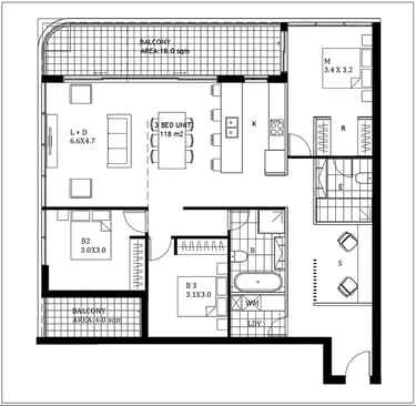
3-Bedroom Plus Study Unit Type: 3 bedroom 2 bathroom Study 1 Car

Size: 118 sqm + 18 sqm Balcony

Your sophisticated luxurious lifestyle awaits you!
Unit Floorplan
Floorplan Position