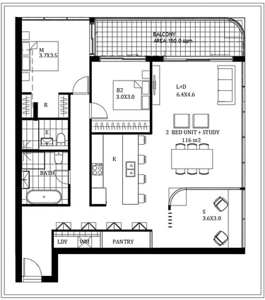
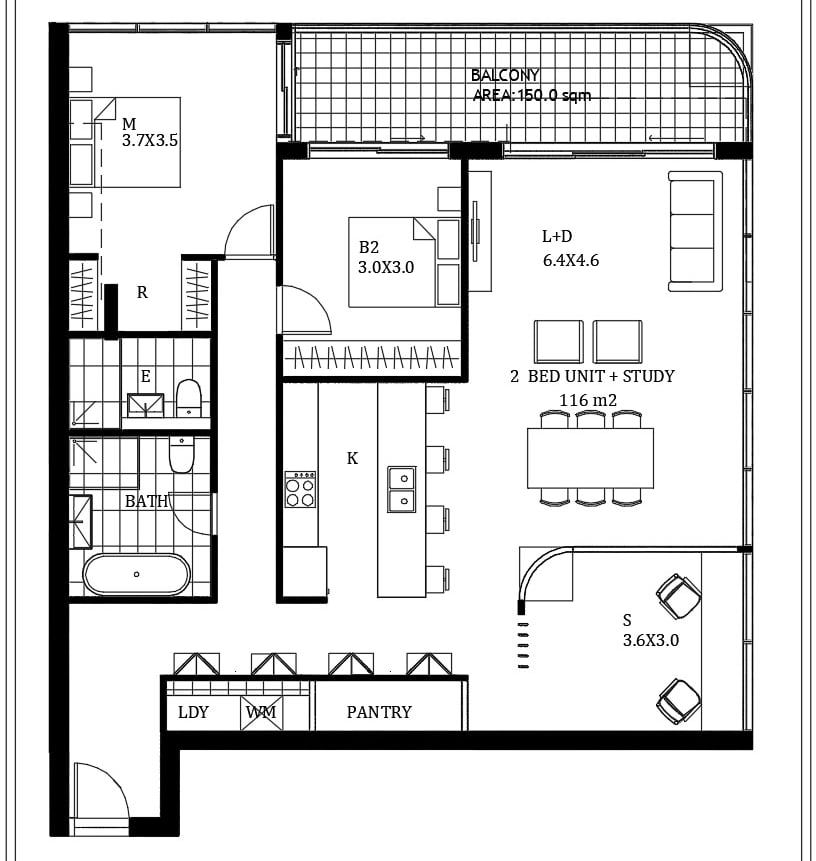
Disclaimer: The specified items listed are indicative only. The Developer Group reserves the right to make changes to generally equivalent products or finishes subject to availability. This plan and any areas shown are subject to the terms of the contract of sale and are subject to amendment and dimensional change. All dimensions are approximate, areas indicated are determined in accordance with the Land Title Act of Queensland (1994) method of measurement guidelines for measuring floor space in residential premises. Fittings, finishes, fixtures and specifications are also subject to change without notice. Images of furniture are for illustrative purposes only. Furniture is not included in the sale. Views will vary depending on the position of the lot within the building. Each of the developer, builder and agent do not warrant that views will not be impacted by future development.